Bell Associates

Client:

Project:

Location:

 

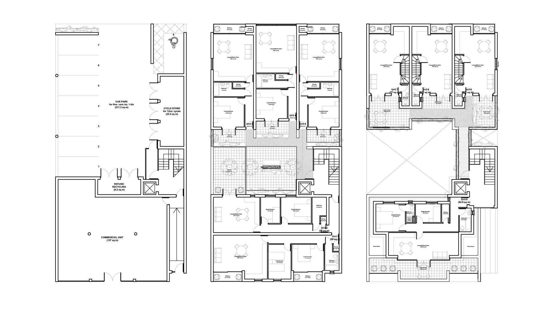
Bell Associates were appointed to submit a planning application to replace a disused London laundry building with a development of six self-contained flats within a dense, urban site. The site was challenging, being landlocked on three sides and encompassing a UK Power Networks substation.  Planning permission was successfully achieved.

 

Other projects for Southern Housing have included planning applications for flat developments in South Croydon and Horsham.

 © Bell Associates 2016

Southern Housing Group

Flat Developments

London and South East

 TERMS & CONDITIONS

PRIVACY POLICY